Menu
mieszkanie
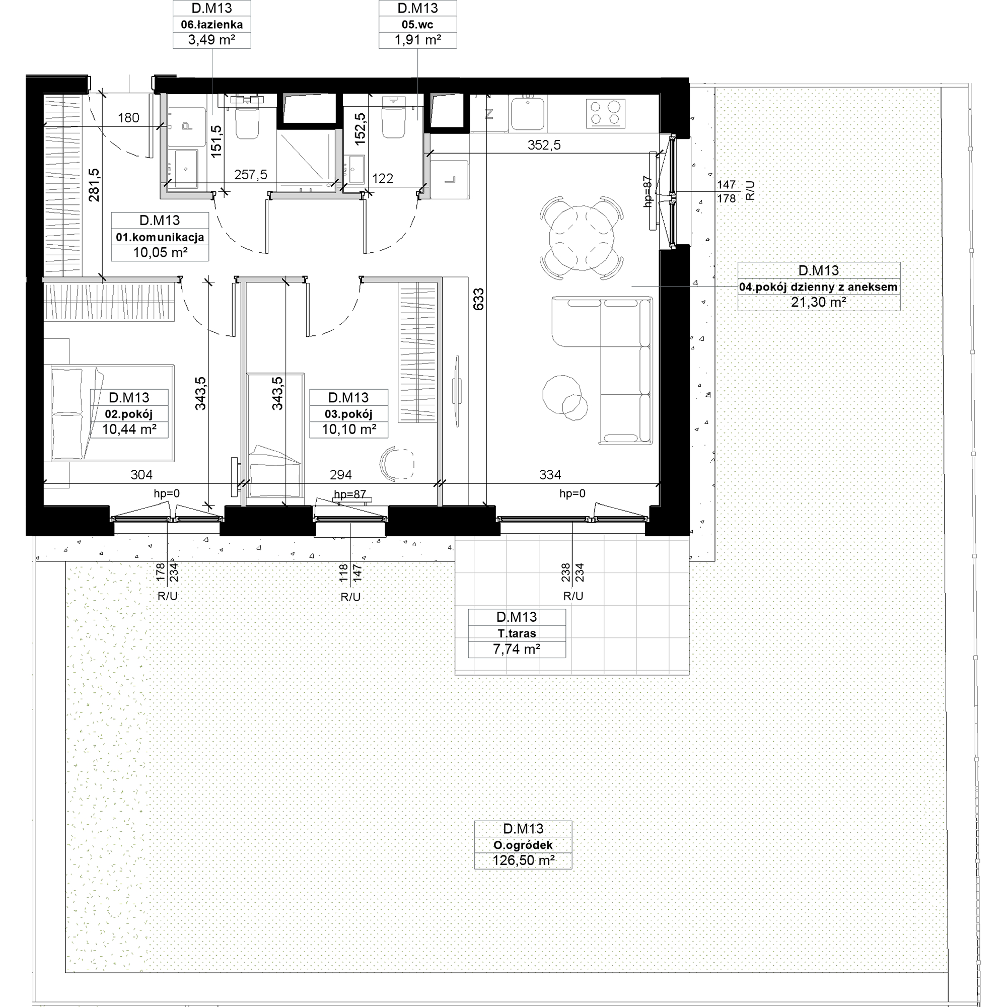
D.M13
Piętro 0
Metraż 57.29m2
Pokoje 3
Taras
Ogródek
Niedostępne
Prognozowana rata**

widok z okna

dollhouse 3d

spacer 3d

Mmm, czy ktoś piecze ciasteczka?
Polityka cookies