Menu
mieszkanie
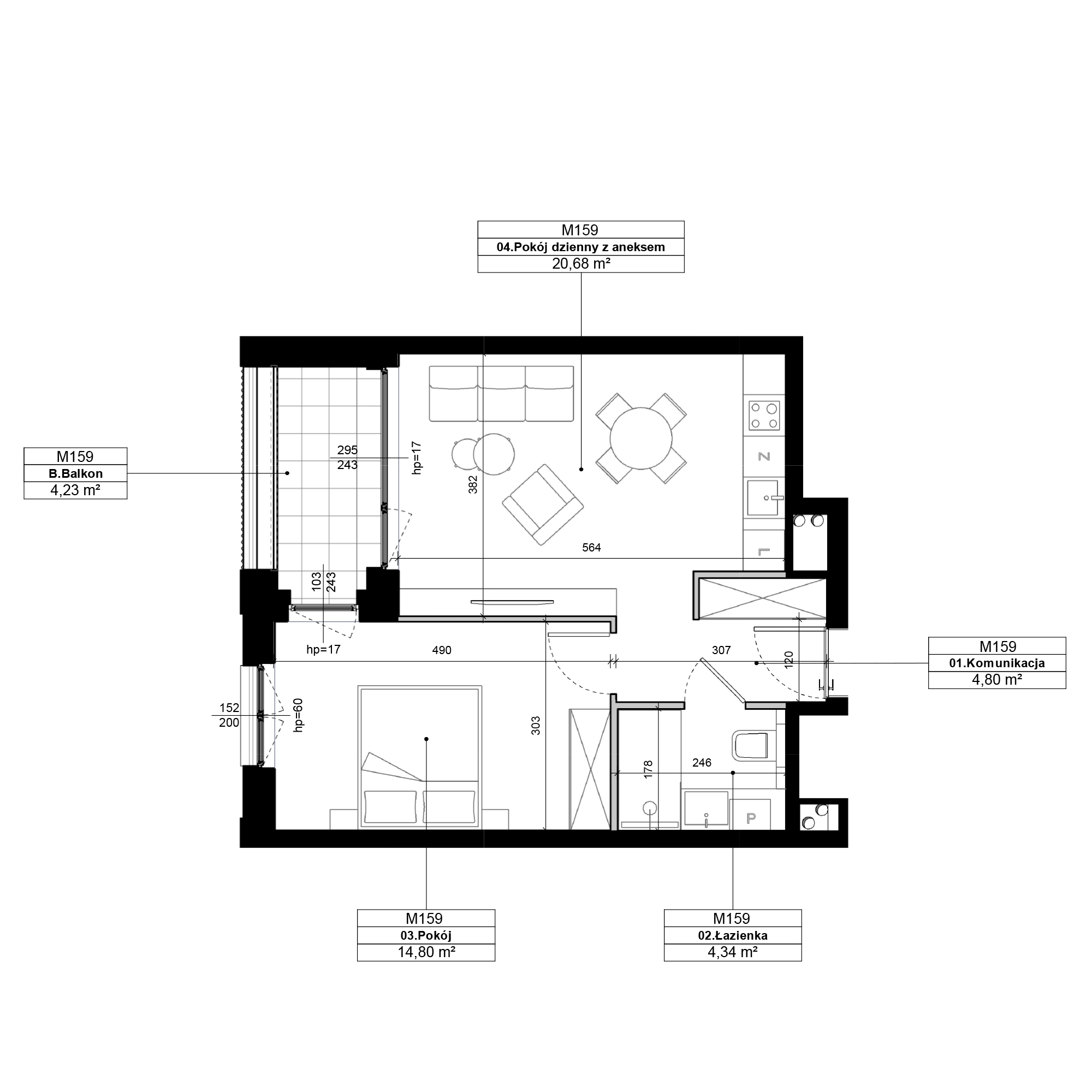
M159
Piętro 4
Metraż 44.62m2
Pokoje 2
Balkon
Niedostępne

widok z okna

dollhouse 3d

spacer 3d

Mmm, czy ktoś piecze ciasteczka?
Polityka cookies