Menu
mieszkanie
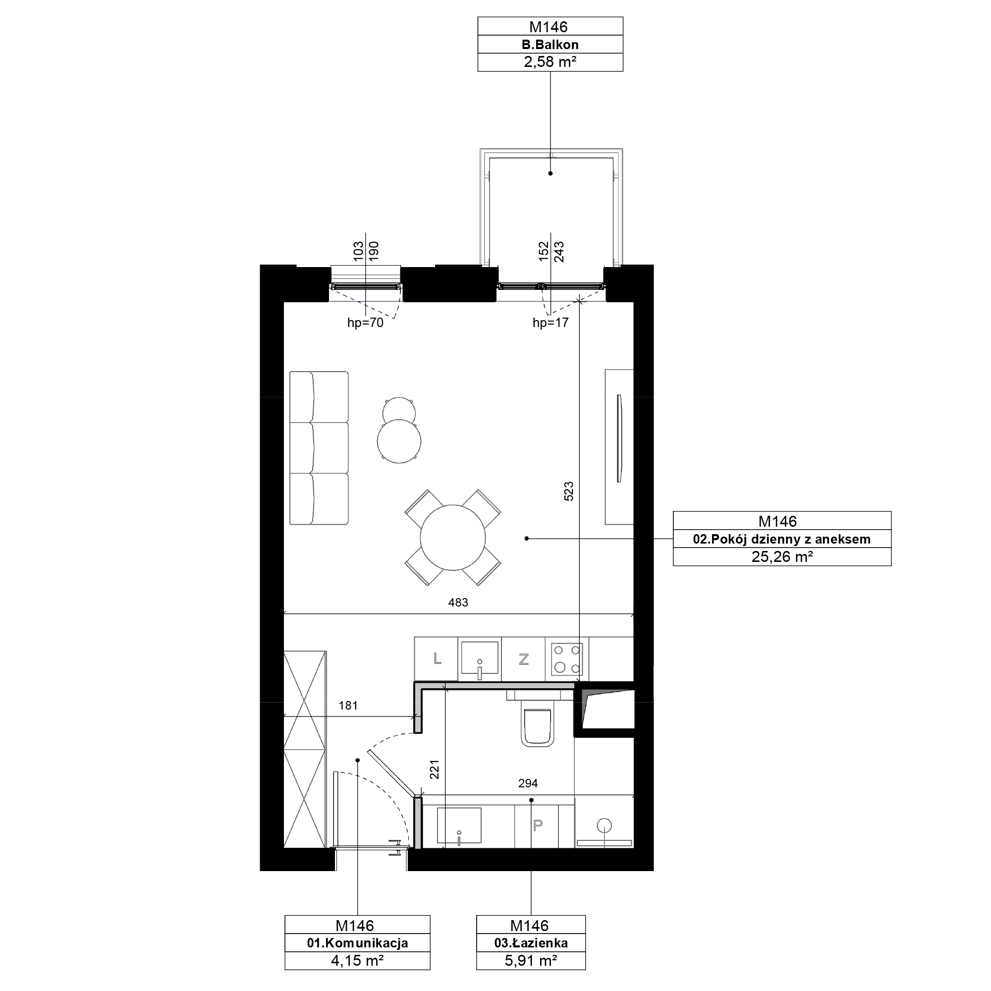
M146
Piętro 4
Metraż 35.32m2
Pokoje 1
Balkon
Niedostępne

widok z okna

dollhouse 3d

spacer 3d

Mmm, czy ktoś piecze ciasteczka?
Polityka cookies