Menu
mieszkanie
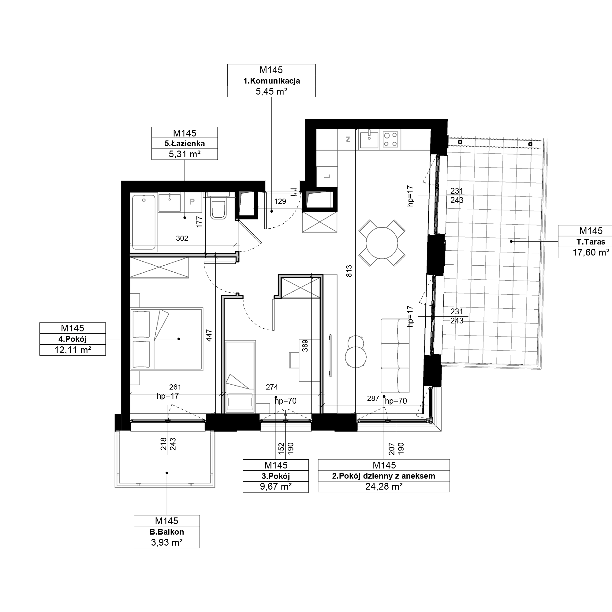
M145
Piętro 4
Metraż 56.82m2
Pokoje 3
Balkon
Taras
Niedostępne

widok z okna

dollhouse 3d

spacer 3d

Mmm, czy ktoś piecze ciasteczka?
Polityka cookies