Menu
mieszkanie
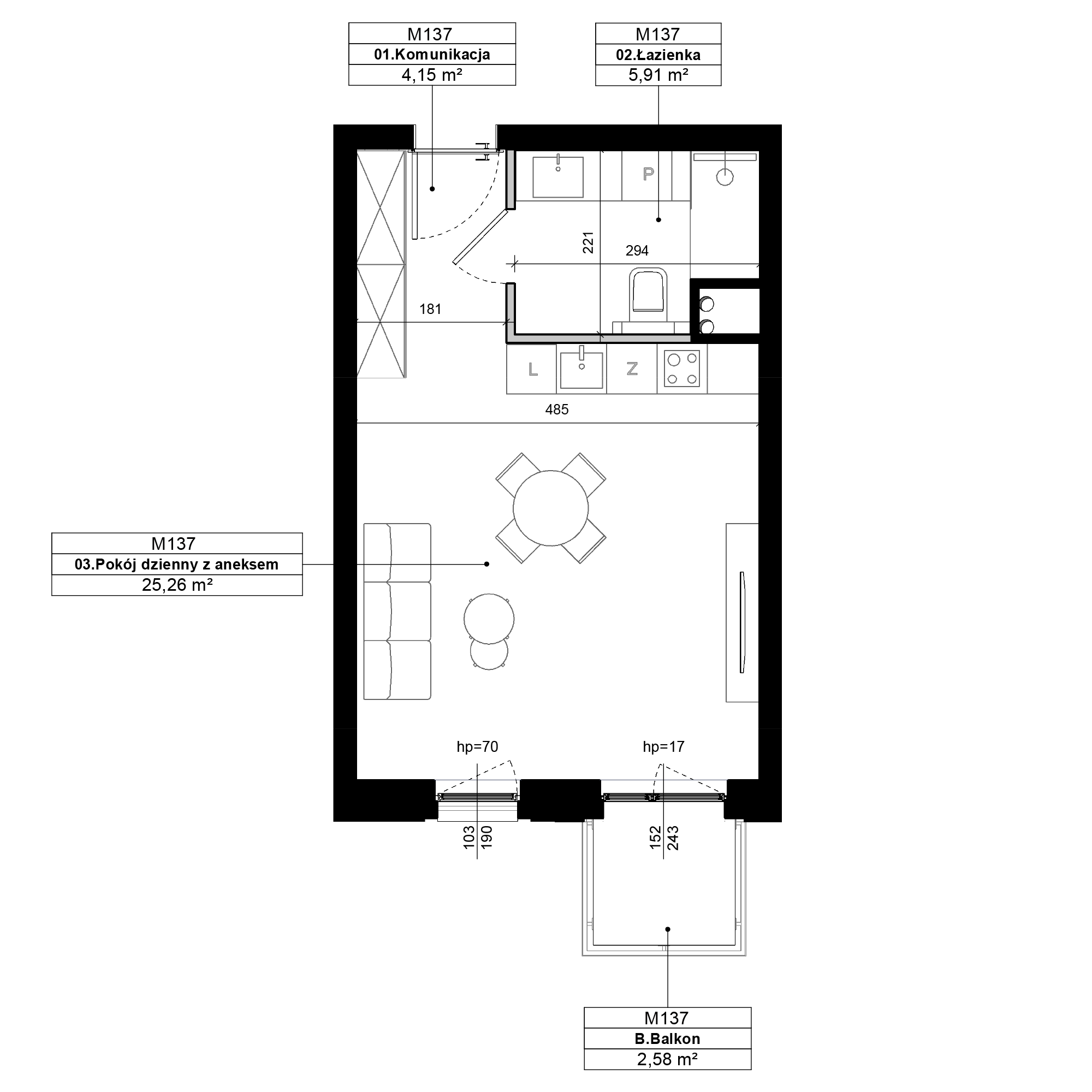
M137
Piętro 3
Metraż 35.32m2
Pokoje 1
Balkon
545.906 zł netto
15.456 zł netto/m2
Dostępne
Zapytaj o lokal Pobierz rzut 2D

widok z okna

dollhouse 3d

spacer 3d

Mmm, czy ktoś piecze ciasteczka?
Polityka cookies