Menu
mieszkanie
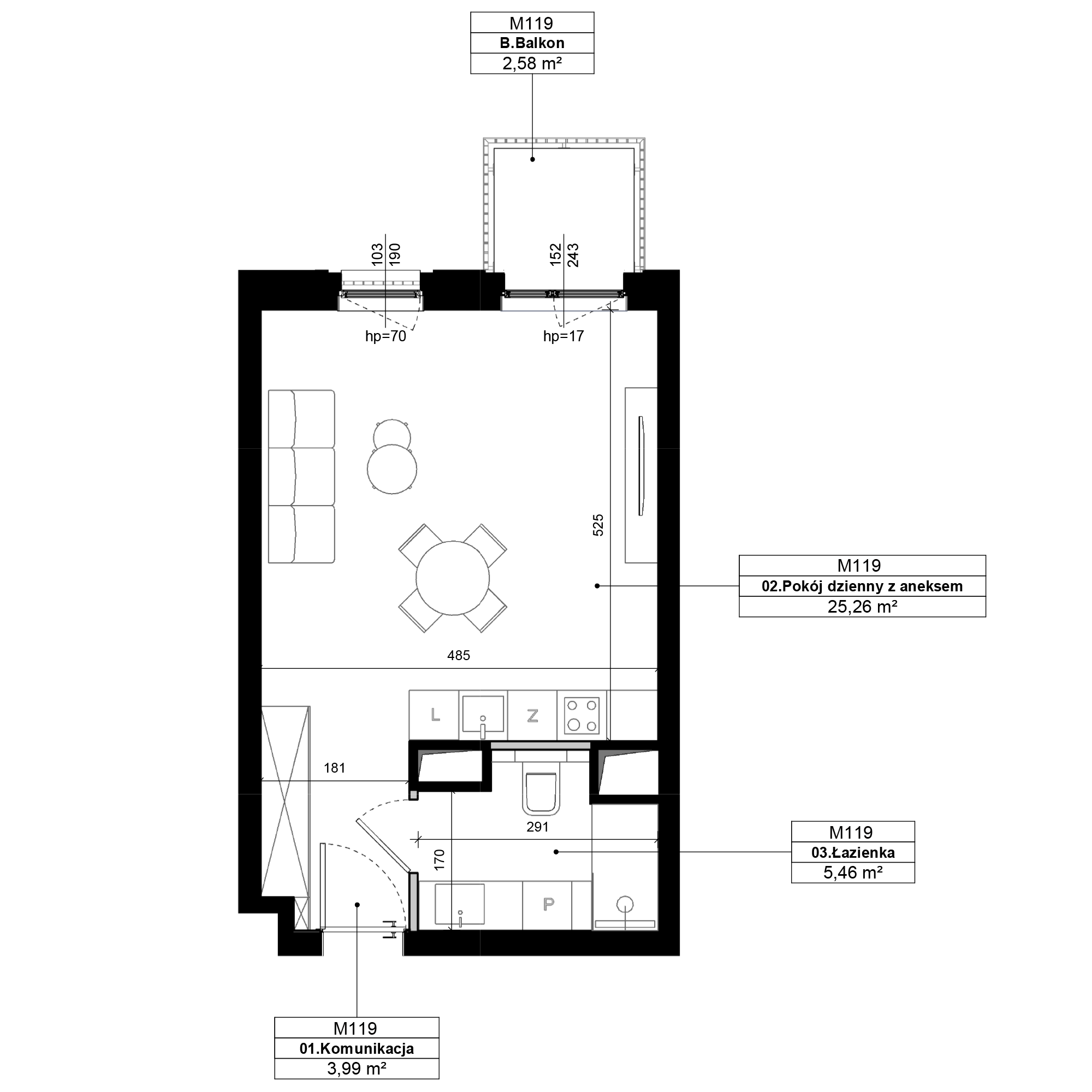
M119
Piętro 3
Metraż 34.71m2
Pokoje 1
Balkon
517.040 zł netto
14.896 zł netto/m2
Dostępne
Zapytaj o lokal Pobierz rzut 2D

widok z okna

dollhouse 3d

spacer 3d

Mmm, czy ktoś piecze ciasteczka?
Polityka cookies