Menu
mieszkanie
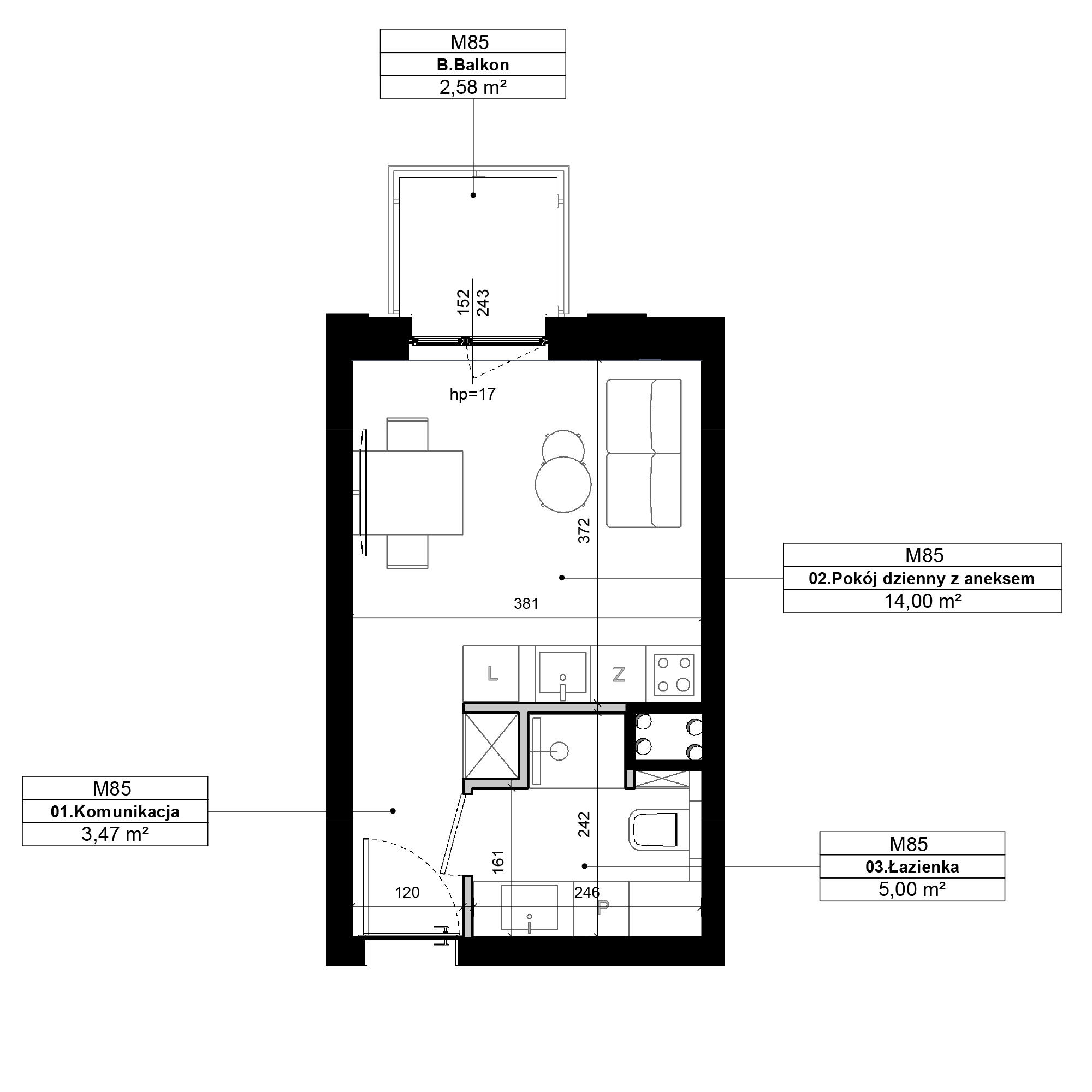
M085
Piętro 2
Metraż 22.47m2
Pokoje 1
Balkon
Niedostępne

widok z okna

dollhouse 3d

spacer 3d

Mmm, czy ktoś piecze ciasteczka?
Polityka cookies