Menu
mieszkanie
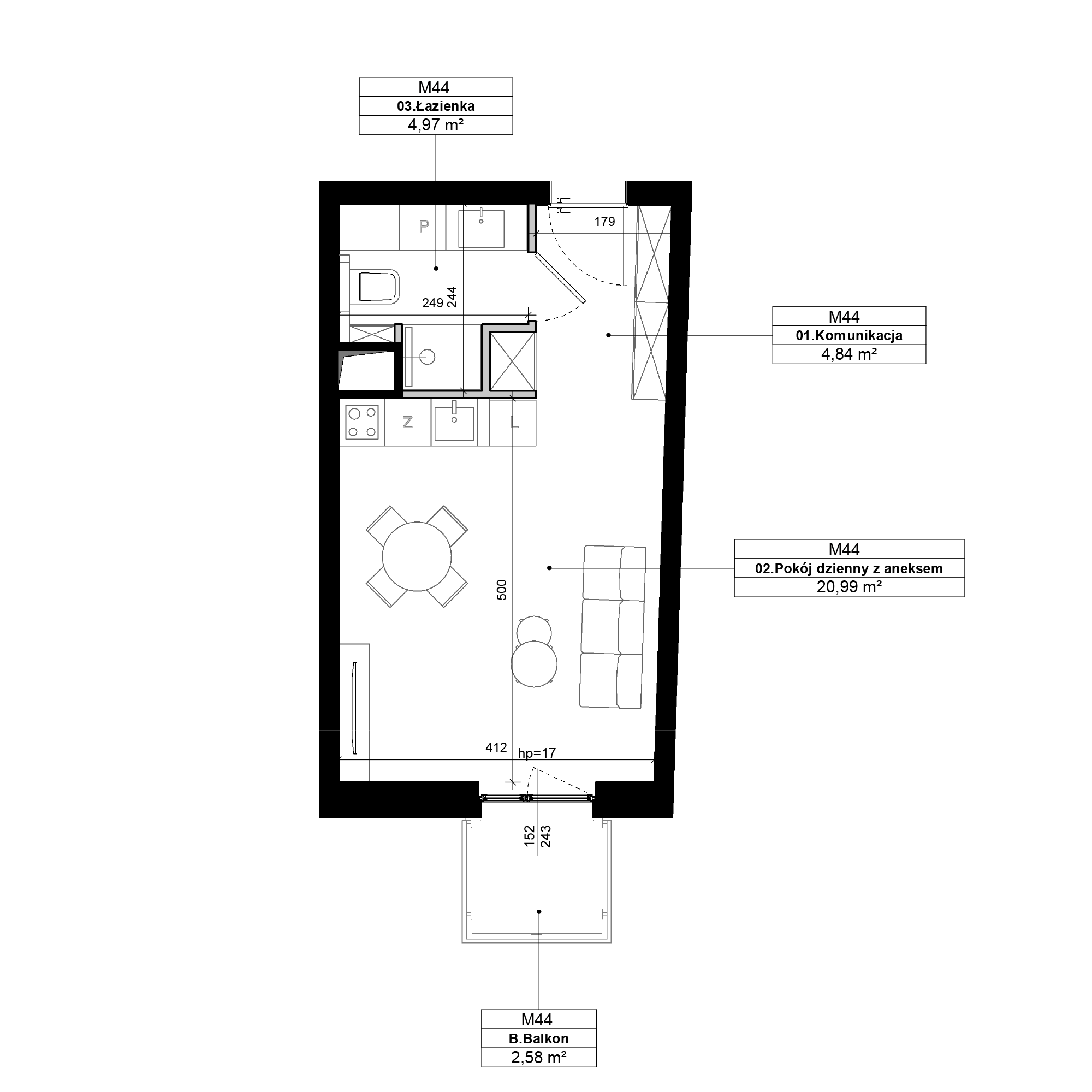
M044
Piętro 1
Metraż 30.80m2
Pokoje 1
Balkon
451.898 zł netto
14.672 zł netto/m2
Dostępne
Zapytaj o lokal Pobierz rzut 2D

widok z okna

dollhouse 3d

spacer 3d

Mmm, czy ktoś piecze ciasteczka?
Polityka cookies