Menu
mieszkanie
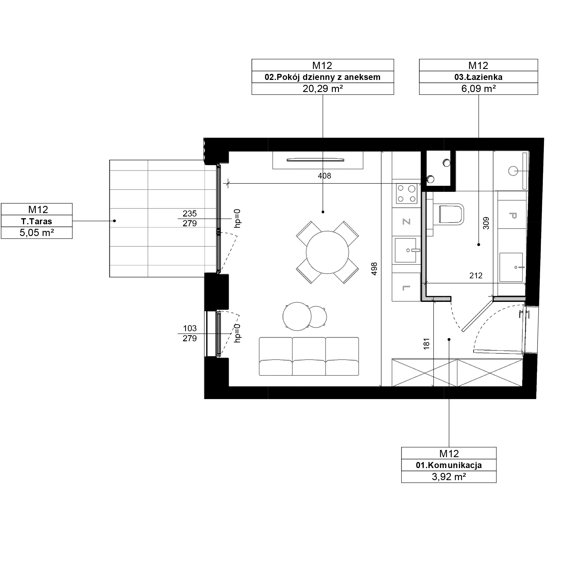
M012
Piętro 0
Metraż 30.30m2
Pokoje 1
Taras
Niedostępne

widok z okna

dollhouse 3d

spacer 3d

Mmm, czy ktoś piecze ciasteczka?
Polityka cookies