Menu
mieszkanie
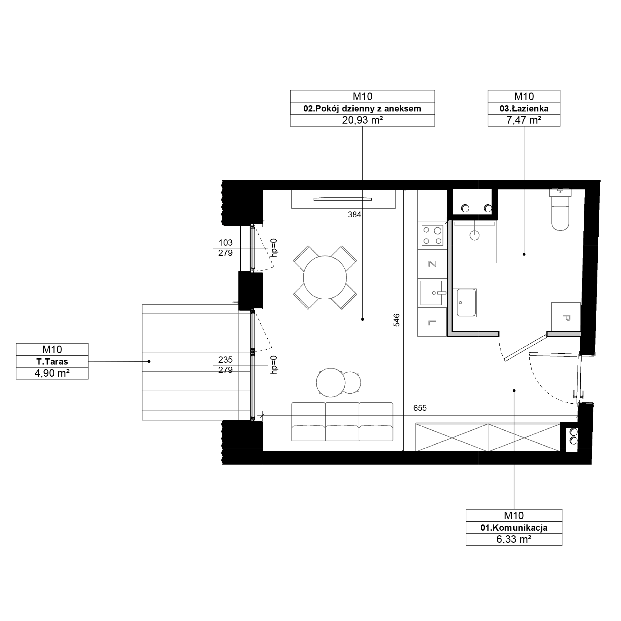
M010
Piętro 0
Metraż 34.73m2
Pokoje 1
Taras
490.110 zł netto
14.112 zł netto/m2
Dostępne
Zapytaj o lokal Pobierz rzut 2D

widok z okna

dollhouse 3d

spacer 3d

Mmm, czy ktoś piecze ciasteczka?
Polityka cookies