Menu
mieszkanie
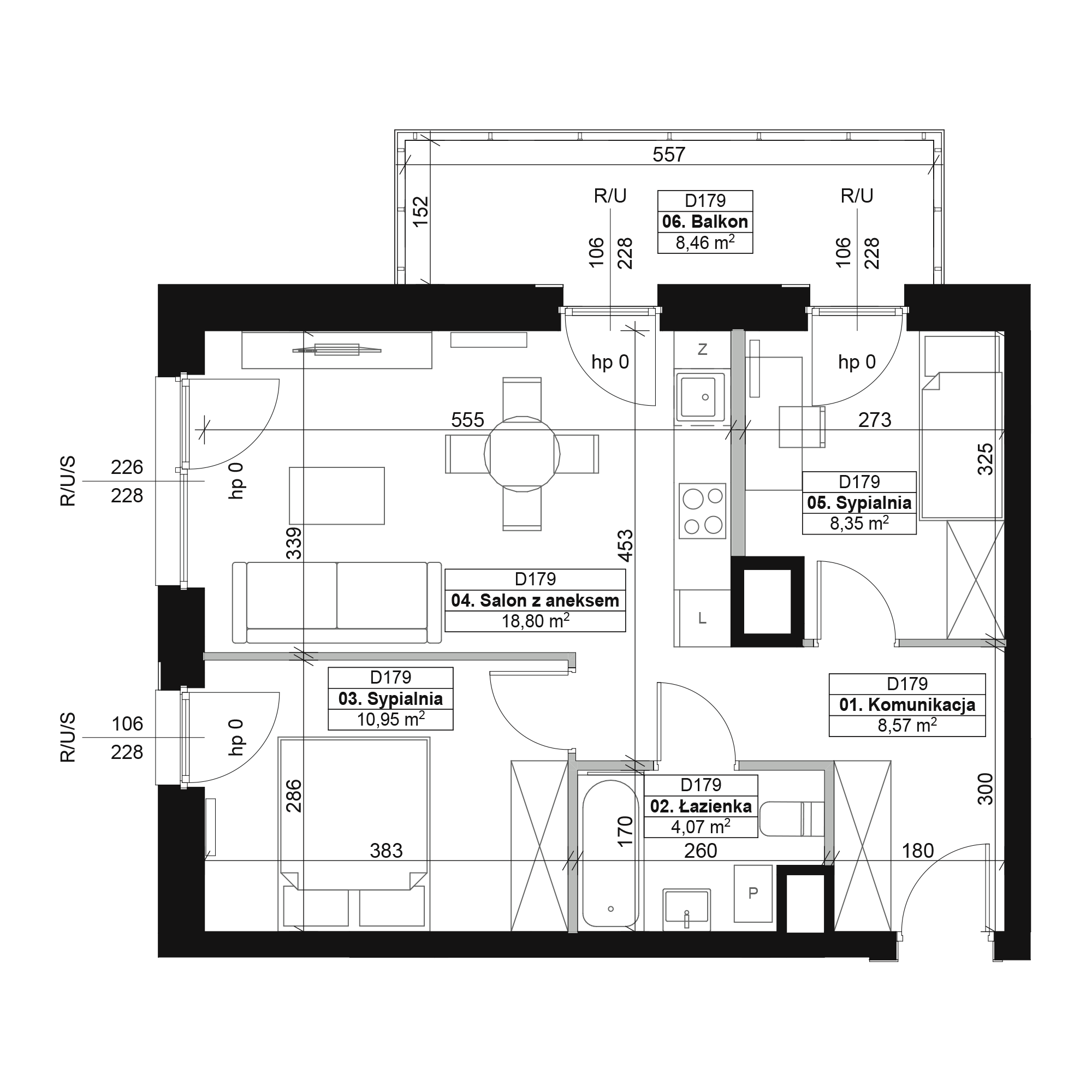
D179
Piętro 3
Metraż 50.74m2
Pokoje 3
Balkon
Niedostępne
Prognozowana rata**

widok z okna

dollhouse 3d

spacer 3d

**Prognozowana rata została obliczona według następujących założeń: raty równe, kredyt na 30 lat, wkład własny 20%, oprocentowanie stałe 7,29% (wg www.theglobaleconomy.com za grudzień 2024). W celu dokładnych wyliczeń prosimy o kontakt z doradcą kredytowym: Tomasz Królikowski, tomasz.krolikowski@notus.pl, tel. 785 995 018.
Mmm, czy ktoś piecze ciasteczka?
Polityka cookies